(仮称)川越市豊田町メゾン 南大塚の3LDK賃貸マンション!|リロの賃貸 レックス大興

レックス大興ロゴ
お問合せ
TOPページ
賃貸物件検索
川越市の賃貸情報一覧
(仮称)川越市豊田町メゾン 南大塚の3LDK賃貸マンション

NEW (仮称)川越市豊田町メゾン 南大塚の3LDK賃貸マンション

  • 14万円
    8,000円
  • 敷金
    1ヶ月
    礼金
    2ヶ月
    保証金
    0ヶ月
    敷引・償却
    0ヶ月-
  • 間取り
    3LDK
    専有面積
    78.39m2
    築年月
    新築 
    所在階 / 階数
    2階 / 2階建
  • 所在地
    埼玉県川越市豊田町2丁目20-  周辺MAP
  • 交通
    西武新宿線 「南大塚駅」 徒歩24分
    JR川越線 「川越駅」 徒歩34分
埼玉県川越市豊田町2丁目20-のマンションの建物外観 埼玉県川越市豊田町2丁目20-のマンションの間取 埼玉県川越市豊田町2丁目20-のマンションの地図 埼玉県川越市豊田町2丁目20-のマンションの周辺 埼玉県川越市豊田町2丁目20-のマンションの周辺
【建物外観】 
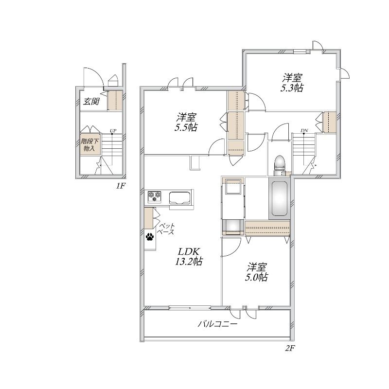
【間取】 
【地図】 
【周辺】 ベルク川越むさし野店
【周辺】 ニトリ川越店
  • 埼玉県川越市豊田町2丁目20-のマンションの建物外観
  • 埼玉県川越市豊田町2丁目20-のマンションの間取
  • 埼玉県川越市豊田町2丁目20-のマンションの地図
  • 埼玉県川越市豊田町2丁目20-のマンションの周辺
  • 埼玉県川越市豊田町2丁目20-のマンションの周辺
光熱費削減ZEH-M対応人とペットに優しいIoT搭載ペット共生へーベルメゾン高断熱仕様により年中快適犬・猫・中型犬・多頭飼いご相談ください〜住むことまるごと〜リロの賃貸へお任せください
049-238-4322
川越店
お問い合わせNO:RHS-14141926
空室確認、内覧希望、費用のご相談など、この物件にお問い合わせ

物件基本情報

所在地 埼玉県川越市豊田町2丁目20-   周辺MAP
交通 西武新宿線 「南大塚駅」 徒歩24分
JR川越線 「川越駅」 徒歩34分
種別 / 構造 賃貸マンション / S造(鉄骨造) 主要採光面 南西 所在階 / 階数 2階 / 2階
築年月 新築  間取り 3LDK( LDK12.9畳/洋室5畳/洋室5畳/洋室5.3畳 ) 専有面積 78.39m2

物件詳細情報

損保 要 15,400円/2年  更新料 あり 1ヶ月 鍵交換代 -
駐車場 空無 近隣駐車場   契約期間
借家区分
2年 普通
現況 未完成 入居可能日 2026年6月上旬 取引態様 専任
保証会社 My Concier パートナー 初回時毎月支払額の50% 2年毎に2万円 仲介手数料 110% バイク置き場
その他費用
  • My Concier Club/2年 18,000円
  • 室内清掃費用

設備詳細情報

キッチン
  • システムキッチン
  • 対面式キッチン
  • 3口以上コンロ
バス・トイレ
  • 給湯
  • バストイレ別
  • シャワー
  • 追焚機能浴室
  • 浴室乾燥機
  • 洗面所独立
  • 温水洗浄便座
  • シャワー付洗面台
  • 室内洗濯機置き場
住空間
  • 最上階
  • バルコニー
  • フローリング
  • エアコン
設備・サービス
  • クロゼット
  • シューズボックス
  • ウォークインクロゼット
  • TVインターホン
  • 宅配ボックス
  • 駐輪場
  • BS
  • 防犯カメラ
  • ネット使用料不要
特 徴
条件・その他  ガス:都市 / 水道:公営 / 排水:下水 / ペット:可能 / 保証会社:必加入
コメント 光熱費削減ZEH-M対応人とペットに優しいIoT搭載ペット共生へーベルメゾン高断熱仕様により年中快適犬・猫・中型犬・多頭飼いご相談ください〜住むことまるごと〜リロの賃貸へお任せください
備 考 -

学区情報

小学校区
()
中学校区
()
情報更新日:2026年04月14日 次回更新予定日:2026年04月28日
※各種情報と差異がある場合は現況優先となります
※物件情報の学区情報について
当サイト物件情報に記載されております通学区域(学区)情報は、国土数値情報ダウンロードサービスが提供する小学校区データ【2021年度】及び中学校区データ【2021年度】を元に加工したものですので、記載情報が現在の学区域と異なる場合がございます。国土数値情報ダウンロードサービスのWEBサイト上で記述通り、データは必ずしも正確とは言えません。また、通学区域(学区)は毎年見直しの対象となりますので、そちらを踏まえ学区情報は参考としてご活用下さい。

こちらの物件の空室状況

間取図 部屋番号 賃料
共益費/管理費
敷金
礼金
間取り
専有面積
お気に入り 物件詳細
間取り画像
101
12万円
8,000円 -
1ヶ月
2ヶ月
2LDK
58.33m2
お気に入り 詳細を見る
間取り画像
102
11.8万円
8,000円 -
1ヶ月
2ヶ月
2LDK
57.69m2
お気に入り 詳細を見る
間取り画像
103
11.8万円
8,000円 -
1ヶ月
2ヶ月
2LDK
55.54m2
お気に入り 詳細を見る
間取り画像
201
14.3万円
8,000円 -
1ヶ月
2ヶ月
3LDK
78.87m2
お気に入り 詳細を見る
間取り画像
202
14万円
8,000円 -
1ヶ月
2ヶ月
3LDK
78.39m2
お気に入り 詳細を見る
間取り画像
203
13.9万円
8,000円 -
1ヶ月
2ヶ月
3LDK
75.05m2
お気に入り 詳細を見る
049-238-4322
川越店
お問い合わせNO:RHS-14141926
空室確認、内覧希望、費用のご相談など、この物件にお問い合わせ

あなたにおすすめの類似物件

  • 埼玉県川越市仙波町1丁目10-2のマンションの建物外観

    賃貸マンション 15万円

    川越駅 徒歩10分

    2LDK(52.54u)

    光熱費削減ZEH-M対応人とペットに優しいIoT搭載ペット共生へーベルメゾン高断熱仕様により年中快適犬・猫・中型犬・多頭飼いご相談ください〜住むことまるごと〜リロの賃貸へお任せください

閲覧した物件の一覧を見る

最近検索した条件一覧



この物件にお問い合わせ


お問い合わせの流れ

お問合せ内容必須
その他のお問合せ内容をご記入ください
お名前必須
メールアドレス必須
※ご記入いただいたメールアドレス宛てに、お問合せ内容の確認メールをお送りいたします。
※Yahoo!メールなどのフリーメールをご利用の場合、迷惑メールフォルダに入る場合があります。
迷惑メールのフォルダ・設定等をご確認下さい。
電話番号




※ご入力いただいたお客さまの個人情報は、「個人情報の取扱いについて」に基づき適正に取り扱います。
必ずお読みになり、同意の上お問い合わせください。
 


▲ページのTOPへ戻る


この物件にお問い合わせ

049-238-4322

※「ホームページを見た」
お伝え下さい。
【物件番号:RHS-14141926】